Продава Тристаен Апартамент София Хиподрума - 405000 EUR

Обява №: 617353 Статус: Активна

Ориентир: бул. Цар Борис III

Обява №: 617353 Статус: Активна

Ориентир: бул. Цар Борис III

Информация

Оферта № :
617353
Площ:
116 m²
Цена
405000
Цена/m2:
3491.38
Етаж:
5 от 7
Статус
Активна
Тераси:
Да
Гараж / Паркомясто:
Да
Година на строителство
1992

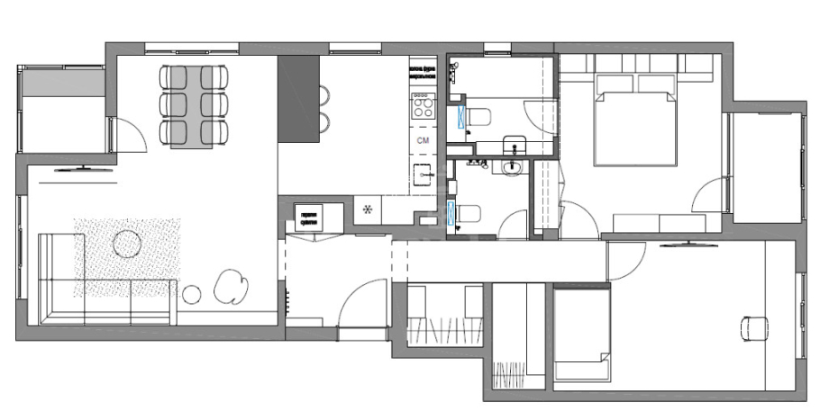
ИмотиБГ предлага ексклузивно луксозен тристаен апартамент в тухлена сграда, основно ремонтиран и завършен по дизайнерски проект. Жилището се намира на 5-ти жилищен етаж и е със следното разпределение: просторен хол с кухненска част и тераса, родителска спалня със самостоятелна баня с тоалетна и тераса, втора спалня обособена като офис към момента, дрешник, склад, мокро помещение и втора баня с тоалетна. Имотът се предлага обзаведен. Отоплението е посредством висок клас климатици. Дограмите са ПВЦ с троен стъклопакет. Настилки: естествен паркет, микроцимент и гранитогрес. Към имота има и мазе.  Метростанция и пазар Красно село са в непосредствена близост. Прилагаме разпределение, както и виртуална разходка с линка отдолу.

https://youtube.com/shorts/oh-jhET0fYU?feature=share

Виж имота на картата Принтирай

Сподели обявата

Твоят агент

Андрей Ангелов

Телефон: 0876 693 516 / 0888 998 166

Email: [email protected]

Скайп: agimotibg