0888 998 166
[email protected]
Sign In
Toggle navigation
Search by ID
Active offers
(215)
Homepage
Search
Advanced search
Map search
Offers
Sales Sofia
New constructions in Sofia
Sofia Rentals
Properties in Bulgaria
Add Property
About us
Contact
https://www.imotibg.com/en//property/view/614703
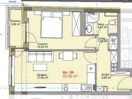
For Sale One bedroom apartment Sofia Banishora 193999 EUR
Offer №::
614703
City:
Guide:
Size:
65
m2
Price:
193999.00
Price/m2:
2984.60
:
:
:
Andrey Angelov
Email:
[email protected]
Phone number:
0876 693 516
Mobile:
0888 998 166
skype:
agimotibg