Под Наем Офис в Офис Сгради София Изток - 2835 EUR

Обява №: 617276 Статус: Активна

Ориентир: бул. Д-р Г.М.Димитров

Обява №: 617276 Статус: Активна

Ориентир: бул. Д-р Г.М.Димитров

Информация

Оферта № :
617276
Площ:
405 m²
Цена
2835
Цена/m2:
7.00
Етаж:
5 от 5
Статус
Активна
Тераси:
Да
Гараж / Паркомясто:
Да

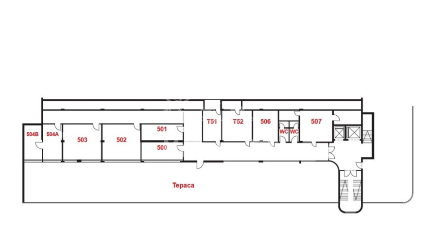
Предлага се просторен офис - цял самостоятелен етаж в бизнес център в непосредствена близост до КАТ, Sopfarma towers и МЕТРОСТАНЦИЯ Г. М. Димитров. Предлаганият офис се намира на пети етаж и е с площ от 405 кв.м. - разпределени удобно на отделни кабинети с различна големина, кухня, склад, собствен санитарен възел и бонус - излаз на просторна панорамна тераса. Отоплението е на ТЕЦ, има и климатици. Възможност за наем на ПАРКОМЕСТА. Офисната сграда е добре поддържана, с 24 часа охрана и видеонаблюдение, асансьор, разполага с посетителски паркоместа за клиенти и куриери и кафене. В допълнение се заплаща такса за поддръжка. Обявената цена е без включен ДДС.

Виж имота на картата Принтирай

Сподели обявата

Твоят агент

Виктория Аврамова

Телефон: 0882 424 160 / 0888 998 166

Email: [email protected]

Скайп: viki_imotibg